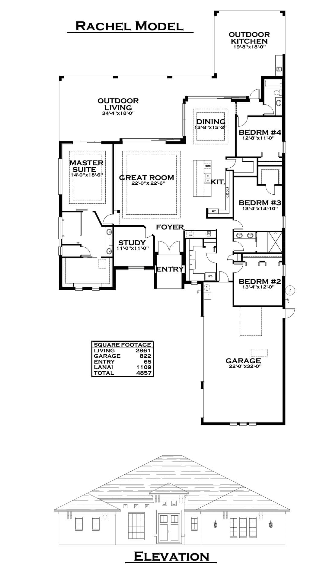
Rachel Model
- Living square footage is 2861
- Total square footage is 4857
- Block construction
- Builder standard spec grade includes 9'4" ceilings throughout the home. Garage ceiling is 9'8.
- Cabinets in Kitchen and Bathroom from Innovation Cabinetry.
- Granite countertops in kitchen and bathrooms.
- Vinyl plank flooring, tile in bathrooms and laundry room. Carpet in bedrooms and closets.
- 30 year dimensional shingles.
- Tray ceilings in great room, dining room and master bedroom.
- 5 1/4" baseboard throughout the home. Double-paned insulated windows.
- Standard stainless steel kitchen appliances.
- *Specs can vary per model and per customer modifications
- Call for pricing information
Related Projects
DO YOU HAVE A PROPERTY IN NEED OF RENOVATIONS, REPAIRS OR RESTORATION?
– Visit our Spring Hill, FL office today or contact us for a quote today!
– Offering Affordable Quality Renovations, Repairs and Restoration Since 2006.








































